Haagwinde 14, Vlijmen
verkocht onder voorbehoud
Details
Overdracht
- Vraagprijs
- verkocht onder voorbehoud
- Status
- verkocht onder voorbehoud
- Aanvaarding
- in overleg
Bouw
- Soort woning
- woonhuis
- Soort woonhuis
- eengezinswoning
- Type woonhuis
- halfvrijstaande woning
- Aantal woonlagen
- 3
- Kwaliteit
- luxe
- Bouwvorm
- bestaande bouw
- Bouwjaar
- 2018
- Bouwperiode
- 2011-
- Onderhoud binnen
- uitstekend
- Onderhoud buiten
- uitstekend
- Dak
- zadeldak
- Keurmerken
- energie Prestatie Advies
- Voorzieningen
- mechanische ventilatie, rolluiken, tv kabel, zonnecollectoren, schuifpui, dakraam en glasvezel kabel
Energie
- Energielabel
- A
- Verwarming
- vloerverwarming geheel, warmtepomp en aardwarmte
Oppervlakten en inhoud
- Woonoppervlakte
- 150 m²
- Perceeloppervlakte
- 235 m²
- Inhoud
- 532 m³
- Bergruimte oppervlakte
- 26 m²
Indeling
- Aantal kamers
- 6
- Aantal slaapkamers
- 4
Buitenruimte
- Tuin
- achtertuin met een oppervlakte van 74 m² en is gelegen op het zuidwesten
Bergruimte
- Garage
- vrijstaande stenen garage
Omschrijving
In het groene en duurzame Geerpark staat deze moderne hoekwoning waar comfort en stijl hand in hand gaan. Nul-op-de-meter, ragfijn afgewerkt en met een zonnige tuin op het zuiden. Hier woon je energiezuinig, sfeervol en met alles wat het leven aangenaam maakt van eigen oprit met laadpaal tot een lichte woonkamer met schuifpui naar de tuin.
Aan de rustige Haagwinde staat deze moderne hoekwoning uit 2018 strak vormgegeven, maar met een warme, huiselijke ziel. De donkere gevelsteen met witte luiken geeft het huis karakter en een eigentijdse uitstraling. Binnen wacht een verrassend lichte leefruimte met vloerverwarming en koeling, grote raampartijen en een naadloze verbinding met de zonnige ac... lees
meer
In het groene en duurzame Geerpark staat deze moderne hoekwoning waar comfort en stijl hand in hand gaan. Nul-op-de-meter, ragfijn afgewerkt en met een zonnige tuin op het zuiden. Hier woon je energiezuinig, sfeervol en met alles wat het leven aangenaam maakt van eigen oprit met laadpaal tot een lichte woonkamer met schuifpui naar de tuin.
Aan de rustige Haagwinde staat deze moderne hoekwoning uit 2018 strak vormgegeven, maar met een warme, huiselijke ziel. De donkere gevelsteen met witte luiken geeft het huis karakter en een eigentijdse uitstraling. Binnen wacht een verrassend lichte leefruimte met vloerverwarming en koeling, grote raampartijen en een naadloze verbinding met de zonnige achtertuin.
De tuin, fraai aangelegd en gelegen op het zuiden, vormt een verlengstuk van de woonkamer. In de beschutte tuin geniet je dankzij de leibomen tot laat in de avond van rust en privacy. Met zonnepanelen, een moderne keuken en vier slaapkamers is dit een energiezuinig en toekomstbestendig thuis waar comfort en sfeer elkaar moeiteloos vinden.
Het huis is voorzien van duurzame verwarming door een aardwarmtepomp. Deze haalt voorverwarmde energie uit de bodem rondom de woning. Eén van de meest duurzame manieren om te verwarmen en warm water te maken. Daarmee is het huis voorzien van vloerverwarming en -koeling waardoor het in de winter altijd lekker warm is en in de zomer heerlijk koel. Altijd een comfortabel huis
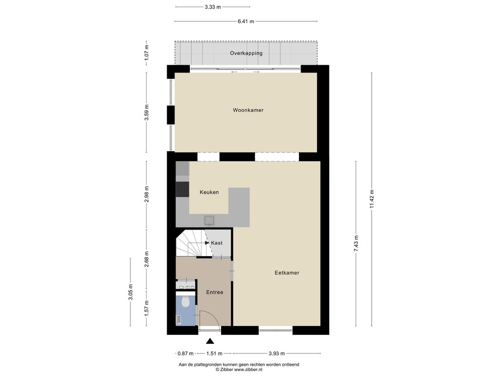
Indeling
Via de entree kom je in de hal met garderobe, meterkast, toilet en trapopgang. De woonkamer, keuken en eetkamer vloeien hier in elkaar over tot één harmonieus geheel. Aan de voorzijde bevindt zich de ruime eetkamer, met plek voor lange diners en fijne gesprekken. De moderne keuken in het midden is voorzien van hoogwaardige inbouwapparatuur van AEG en vormt het hart van de woning. Aan de achterzijde ligt de lichte woonkamer, met openslaande deuren naar de tuin.
De tuin is een echte eyecatcher: onderhoudsvriendelijk, zonnig en strak vormgegeven met op maat gemaakte looppaden en een terras van beton, wat zorgt voor een moderne en robuuste uitstraling. Binnen en buiten vloeien moeiteloos in elkaar over. Achterin de tuin bevindt zich een royale berging, momenteel in gebruik als opslag. Door de ruime opzet en eigen toegang is deze echter ook uitstekend te benutten als praktijkruimte, atelier of hobbyplek.
Eerste verdieping
De eerste verdieping telt drie comfortabele slaapkamers, stuk voor stuk met veel lichtinval, een serene uitstraling en strakke afwerking. De hoofdslaapkamer biedt ruimte voor een grote kastwand en ademt rust door het zachte kleurgebruik. De andere kamers zijn ideaal als kinderkamer, werkplek of logeerkamer veelzijdig en met een fijne, open sfeer.
De badkamer is modern uitgevoerd met een ruime inloopdouche, dubbel wastafelmeubel, tweede toilet en handdoekradiator. Strakke lijnen, frisse tinten en doordachte indeling maken het een plek waar de dag prettig begint en ontspannen eindigt.
Tweede verdieping
Via een vaste trap bereik je de tweede verdieping: een volwaardige zolderverdieping met veel mogelijkheden. De ruimte is tot in de nok afgewerkt en voorzien van praktische bergruimtes achter de knieschotten. Dankzij het raam in de kopgevel en de lichte afwerking voelt deze verdieping verrassend ruim en prettig aan.
Hier bevindt zich de opstelplaats voor wasapparatuur en een extra werkblad met spoelbak ideaal als was- of hobbyruimte. De zolder is groot genoeg om te gebruiken als vierde slaapkamer, kantoor aan huis of creatieve werkplek; wat je woonstijl ook is, deze verdieping beweegt met je mee.
Tuin
De achtertuin van Haagwinde 14 is een heerlijke plek waar comfort, rust en design samenkomen. Dankzij de ligging op het zuiden geniet je hier de hele dag van zon en privacy. De tuin is onderhoudsvriendelijk aangelegd met strak groen kunstgras, volwassen beplanting en een stijlvolle border vol kleur en structuur.
Direct achter de woning zorgen de grote schuifpuien voor een natuurlijke overgang tussen binnen en buiten. Aan het ruime terras is plek voor een lange eettafel of loungeset – de perfecte setting voor lange zomeravonden onder de moderne overkapping.
Achterin de tuin staat een royale berging, fraai afgewerkt en voorzien van dubbele deuren. Ideaal voor fietsen, gereedschap of tuinkussens, maar door de afmeting en uitstraling ook uitstekend geschikt als praktijkruimte, atelier of kantoor aan huis.
Met zijn rustige sfeer, subtiele verlichting en onderhoudsvriendelijke opzet is dit een tuin die niet vraagt om werk, maar uitnodigt tot genieten.
Bijzonderheden
• Nul-op-de-meter woning – volledig gasloos en energiezuinig
• Strak en ragfijn afgewerkt interieur
• Zonnige, onderhoudsvriendelijke tuin op het zuiden
• Grote schuifpui naar het terras en de overkapping
• Afgewerkte zolder met vaste trap, werkplek en wasruimte
• Eigen oprit met laadpaal voor elektrische auto
• Moderne keuken met AEG inbouwapparatuur
• Vloerverwarming en koeling op de begane grond en eerste verdieping
• Zonnepanelen op het dak (eigendom)
• Gelegen in duurzame en kindvriendelijke wijk Geerpark





